Project Type:
Residential
Client:
Bradford Custom Homes & Remodeling
Location:
Atlanta, Georgia
Date:
01/01/2025

Design in Details
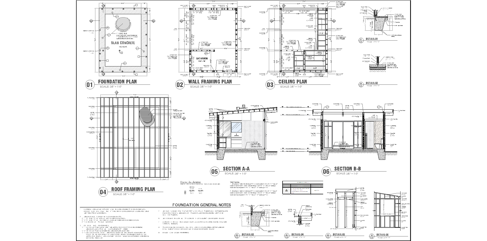
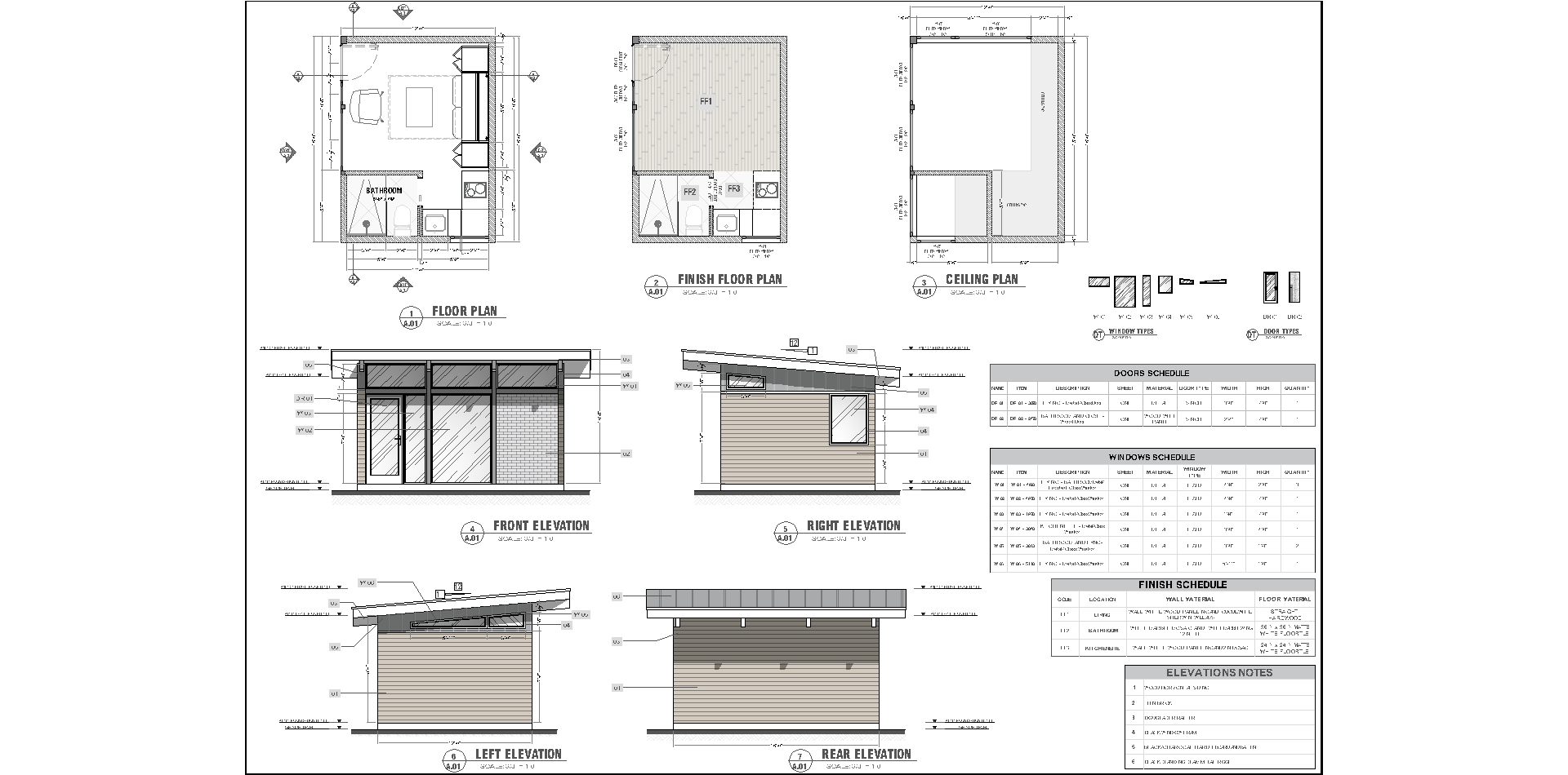
We developed a comprehensive design and engineering solution for this independent workspace, crafted to provide maximum privacy and functionality. With a compact and efficient footprint of 192 S.F., this structure represents the perfect balance between modern residential design and the versatility of a high-end private office.
Services Provided by Antree:
- Architecture: Optimized floor plans and elevations for a 192.00 S.F. office, focusing on seamless aesthetic integration with the primary property and interior space efficiency.
- Structural Engineering: Full structural engineering package, ensuring a solid and durable build that meets all current construction standards.
- MEP (Electrical, & Plumbing): Detailed MEP plan sets, providing a technical infrastructure ready for high-performance office equipment.
- 3D Renders: Photorealistic modeling and visualization to validate finishes and volume, allowing the client to visualize the final result prior to construction.
Incredible Result
Related Projects