Project Type:
Commercial
Client:
Jo Orr
Location:
New Orleans, LA.
Date:
10/01/2024

Design in Details
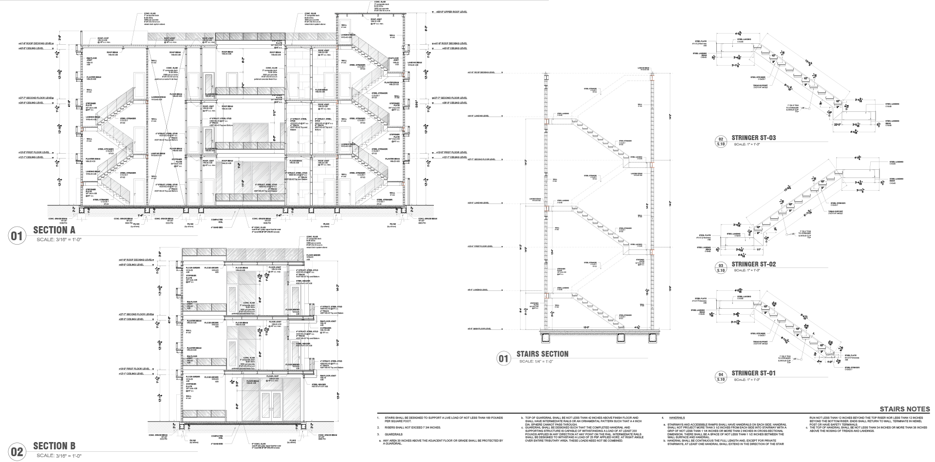
We developed the full architectural and engineering set for this impressive 7,900 sq. ft. creative complex. This three-story industrial-style building was designed to house art studios, balancing a robust steel structure with functional, modern creative spaces.
Scope of Work at Antree:
- Architecture: Complete architectural design, including floor plans for all three levels, elevations, and detailed building sections.
- Structural Engineering (Steel): Full structural development featuring steel framing, CMU load-bearing walls, and reinforced concrete foundation details, all compliant with seismic and local building standards.
- MEP (Plumbing & Electrical): Integrated design of high-capacity electrical and plumbing systems tailored for studio workshops and creative use.
Technical Specifications:
- Total Construction Area: 7,901.45 sq. ft.
- Structure: Structural steel and CMU (Concrete Masonry Unit) construction.
- Building Height: 50 ft. (3 Levels).
Incredible Result
Related Projects