
Design in Details
Located in Palm Coast, Florida, the "Presidential Residence" is an impressive single-story single-family home encompassing a total construction area of 3,860.16 sq. ft. Designed on a lot exceeding 10,200 sq. ft., this home was conceived to offer a natural flow between social and private areas, prioritizing family comfort and a contemporary lifestyle.
Our Role:
At Antree, we were responsible for taking this project from conceptualization to the final technical documentation. Our team developed a comprehensive service that included:
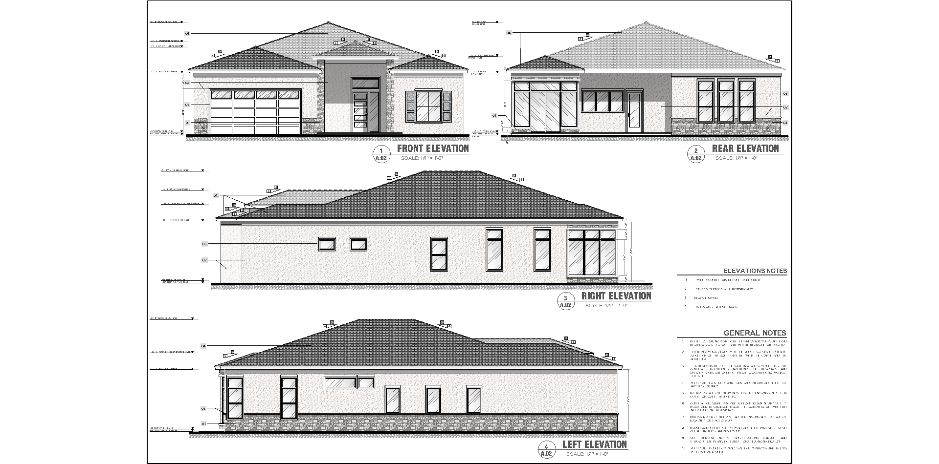
- Architectural Plans: Floor plans, Elevations, Site plans, Sections, Roof plans, and details.
- Structural Engineering: Structural calculations and plans to ensure design safety and feasibility.
- MEP: Detailed design of plumbing and electrical systems.
- 3D Visualization: Creation of photorealistic exterior renders to preview finishes and massing.
Key Features:
The interior design stands out for its spaciousness, offering 4 bedrooms and 4 full bathrooms. The Master Suite features a large walk-in closet and a luxurious private bathroom. To adapt to modern work dynamics, the home incorporates a private office.
The social areas integrate seamlessly with the outdoors. A large kitchen with a pantry and breakfast nook opens into a living room that connects to a covered patio and a beautiful deck. The exterior design projects a clean, modern aesthetic, combining "Early White" stucco finishes with elegant rustic accents and dark-toned roofing.