Project Type:
Institutional & Assembly
Client:
Vineyard Church
Location:
Los Angeles, CA
Date:
06/01/2024

Design in Details
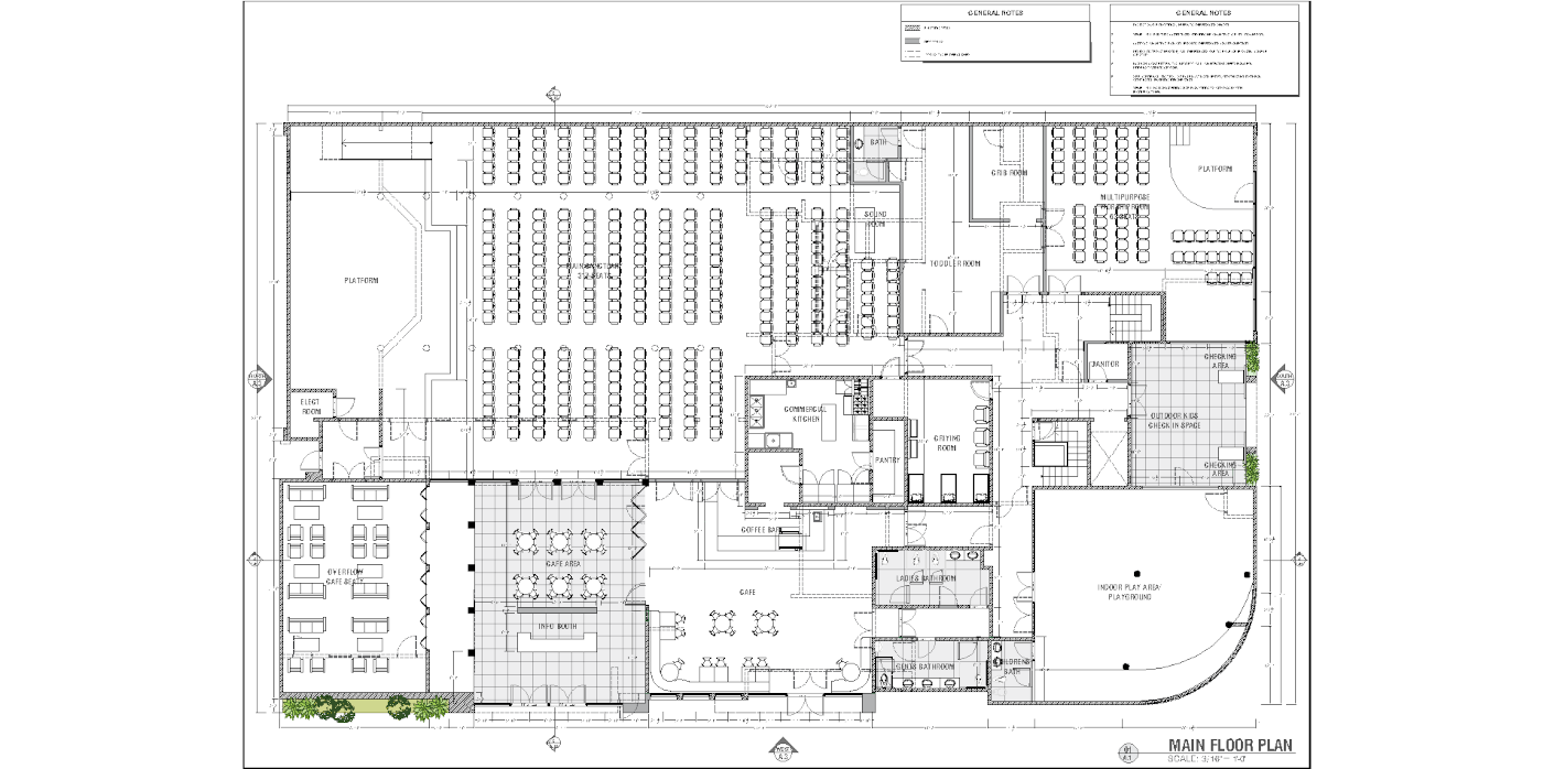
We performed the comprehensive engineering and design development for the renovation of this religious complex, which exceeds 18,000 sq. ft. Our team was responsible for transforming the architectural vision into a technical set ready for execution, ensuring safety and functionality throughout every area.
Scope of Work at Antree:
- Architecture: Design of site plans, floor-level distribution, sections, and finishes for a total construction area of 18,230.43 sq. ft.
- Structural Engineering: Development of the structural set, including foundation details, reinforcements, floor joists/beams, and material specifications in compliance with U.S. building codes.
- MEP (Plumbing & Electrical): Design of coordinated plumbing and electrical systems to meet local regulations and the building's high-demand usage.
- 3D Visualization: Creation of professional renders for the pre-visualization of interior spaces, facades, and common areas, streamlining the client’s decision-making process.
Incredible Result
Related Projects